| Price: | $149,500 |
| Property Type: | residential |
| MLS #: | 20262701 |
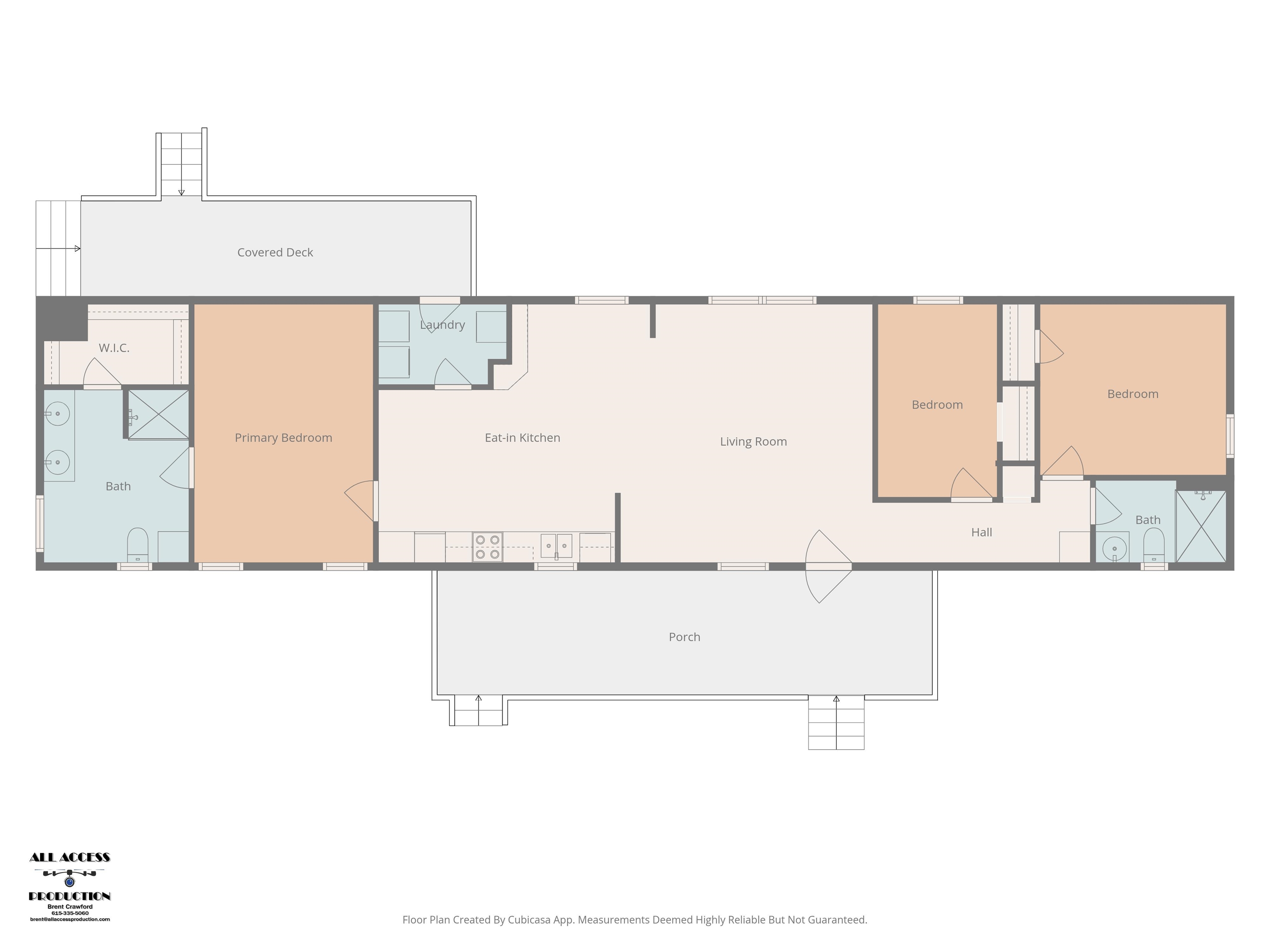
| If you've been looking for a place with a little breathing room, this Waskom property might feel just right. Sitting on a full acre, this 3-bedroom, 2-bath home offers a comfortable, easy layout with plenty of natural light and space to settle in and make it your own. Step outside and you'll find a fully fenced yard, workshop and storage building. There's plenty of room to garden, relax, or host a weekend get-together. One of the real highlights is the detached shop, complete with a concrete floor and electricity. Whether you're into projects, need extra storage, or want a dedicated workspace, it's a feature that adds a lot of flexibility. Like blueberries? Enjoy fresh blueberries from the established blueberry bushes on the property. | |
| Area: | Waskom Isd |
| Year Built: | 2007 |
| Bedrooms: | Three |
| Bathrooms: | Two |
| Garage: | 2 |
| Acres: | 1 |
| Heating : | Central Electric |
| Cooling : | Central Electric |
| Fireplaces : | None |
| WATER/SEWER : | Aerobic Septic System |
| FENCING : | Wood Fence |
| FENCING : | Chain Link Fence |
| DRIVEWAY : | Gravel |
| ExistingStructures : | Storage Buildings |
| ExistingStructures : | Work Shop |
| UTILITY TYPE : | Electric |
| ExteriorFeatures : | Porch |
Courtesy: Scott, Sabrina • FATHOM REALTY LLC • 888-455-6040
Users may not reproduce or redistribute the data found on this site. The data is for viewing purposes only. Data is deemed reliable, but is not guaranteed accurate by the MLS or LAAR.
This content last refreshed on 04/19/2026 03:00 AM. Some properties which appear for sale on this web site may subsequently have sold or may no longer be available.