| Price: | $419,000 |
| Property Type: | residential |
| MLS #: | 26005118 |
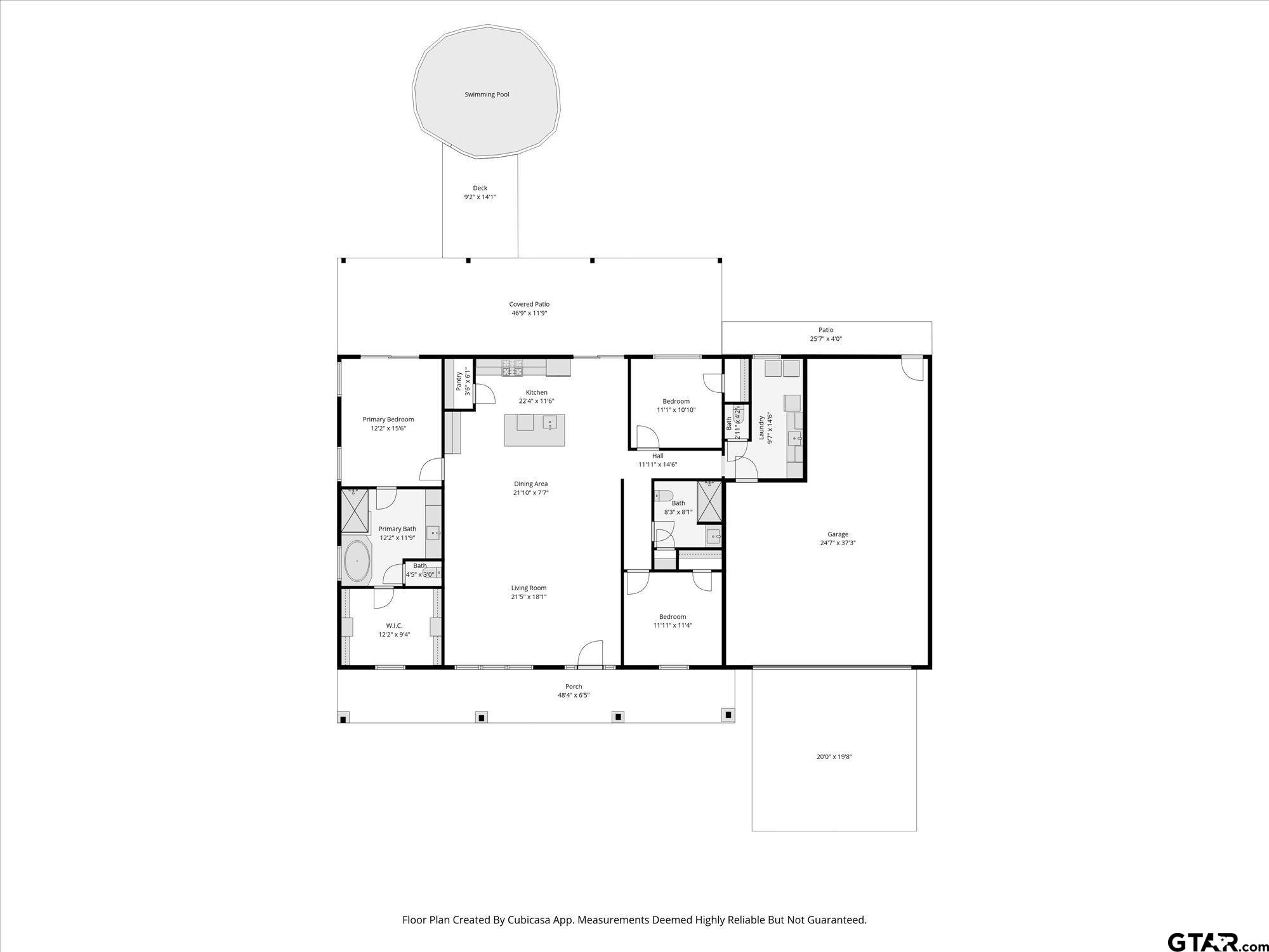
| Welcome to 20203 FM 1804 in Lindale where comfort, space, and entertainment come together. Built in 2017, this 3-bedroom, 2.5 bath home offers approximately 2,060 square feet on a fully fenced property designed for both privacy and enjoyment. Step inside to a spacious layout featuring a large living area and a dedicated home theater with surround sound perfect for movie nights, game days, or hosting guests. The kitchen provides ample space for cooking and gathering, while the well sized bedrooms offer flexibility for family, guests, or a home office. Outside is where this property truly shines enjoy your own above ground swimming pool, ideal for relaxing and entertaining during warm Texas days. With a 4 car garage plus additional carport space, there's plenty of room for vehicles, hobbies, or storage. An added bonus is the energy efficient solar system, helping reduce utility costs. Located in Lindale ISD with convenient access to town, this property offers the perfect blend of functionality, lifestyle, and value. Don't miss the opportunity to make it yours. | |
| Area: | Smith |
| Year Built: | 2017 |
| Bedrooms: | Three |
| Bathrooms: | Two |
| 1/2 Bathrooms: | 1 |
| Garage: | 4 |
| Acres: | 1.082 |
| Virtual Tour: | Click here to view |
| CONSTRUCTION : | Wood Frame |
| CONSTRUCTION : | Concrete Based Siding |
| COOLING : | Central Electric |
| DINING AREAS : | Kitchen/Eating Combo |
| FENCING : | Wood Fence |
| FENCING : | Metal Fence |
| FIREPLACE : | None |
| INTERIOR : | Ceiling Fan |
| KITCHEN EQUIPMENT : | Microwave |
| KITCHEN EQUIPMENT : | Dishwasher |
| KITCHEN EQUIPMENT : | Range/Oven-Gas |
| OUTBUILDINGS : | None |
| POOL/SPA : | Above Ground |
| STYLE : | Traditional |
Courtesy: Maldonado, Olimpia • Keller Williams Realty-Tyler • 903-534-6600
The data relating to real estate for sale on this website comes in part from the Internet Data Exchange (IDX) of the Greater Tyler Association of REALTORS Multiple Listing Service. The IDX logo indicates listings of other real estate firms that are identified in the detailed listing information. The information being provided is for consumers' personal, non-commercial use and may not be used for any purpose other than to identify prospective properties consumers may be interested in purchasing. This information is deemed reliable, but not guaranteed.
This content last refreshed on 04/23/2026 02:45 AM. Some properties which appear for sale on this web site may subsequently have sold or may no longer be available.